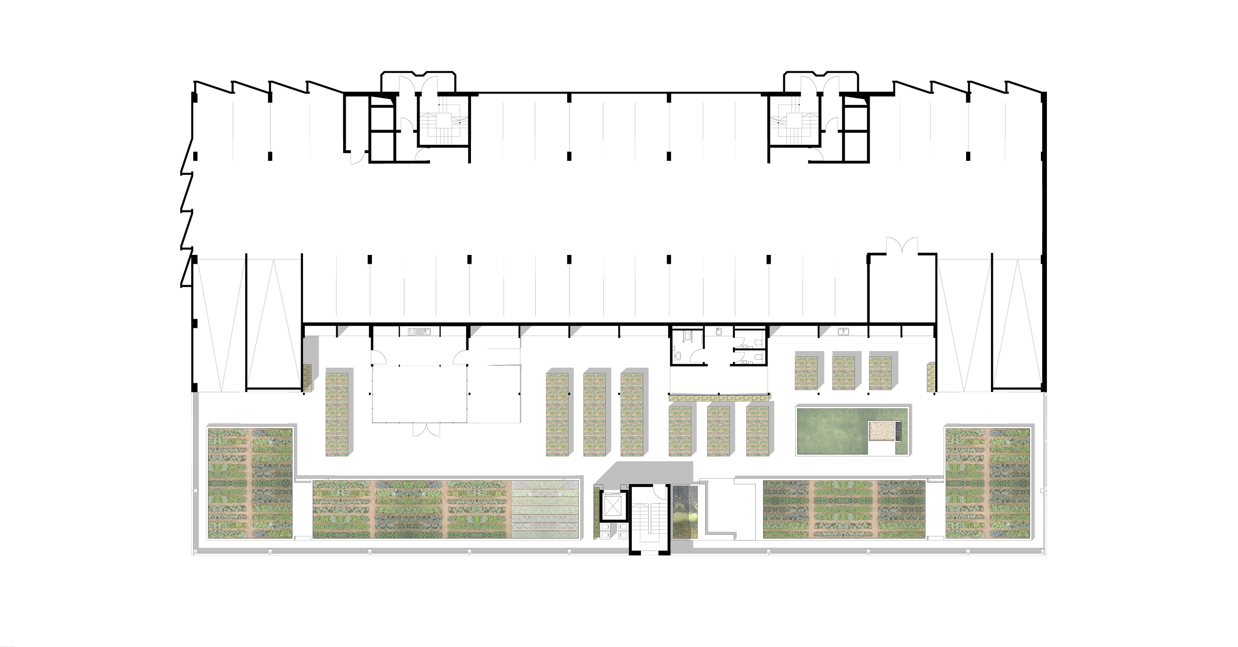
Auf dem obersten Parkdeck eines Wohn- und Parkhauses in Berlin-Schöneberg entsteht derzeit ein lebendiger Nachbarschaftsgarten. Hier sollen Anwohner künftig gemeinsam auf Gemeinschaftsflächen oder in Hochbeeten gärtnern und Netzwerke knüpfen. Geplant sind zudem Bildungsangebote zu gesunder Ernährung, Klimaanpassung und Gemüseanbau. Der Garten soll ein sozialer Treffpunkt werden, der gemeinschaftliches Handeln und nachhaltiges Stadtleben fördert.
RaumstarArchitekten entwarfen nicht nur die notwendige Architektur mit Gewächshaus, Gemeinschaftsküche, Sanitäranlagen, Ackerflächen und technischer Infrastruktur, sondern konzipierten auch das Regenwassermanagement sowie eine Solaranlage für den wasser- und klimaneutralen Betrieb des Projekts. Das Büro entwickelte darüber hinaus das Konzept für den Gartenbetrieb, verankerte das Projekt gemeinsam mit politischen Akteuren im Kiez und begleitet mit Partizipationsprozessen wie Design- und Bauworkshops den schrittweisen Aufbau der Gemeinschaft.

