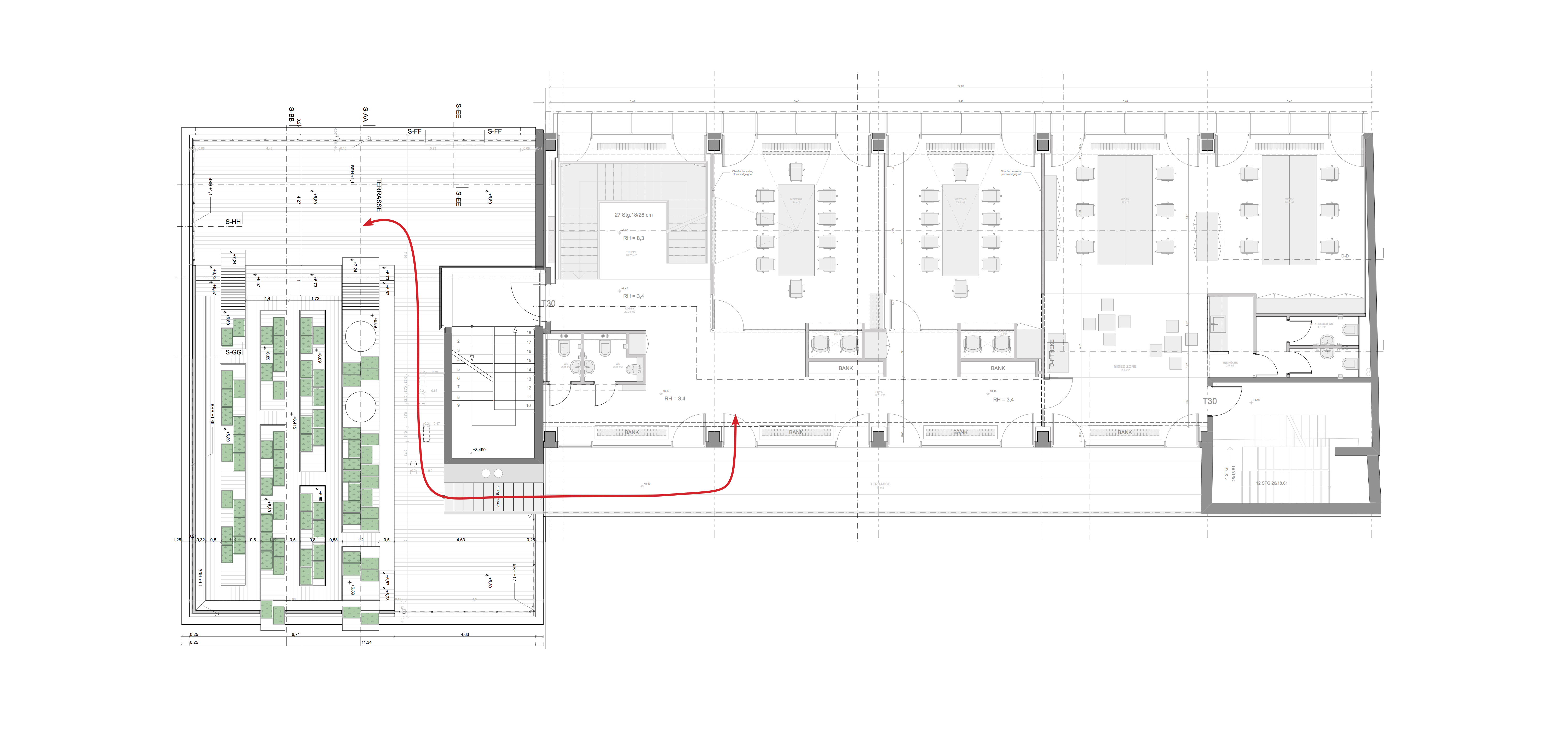
Urban rooftop garden, Berlin Kreuzberg

Facing the river Spree and the U1 rail line, RaumstarArchitekten converted the rooftop of a two-storey building into a spacious terrace. While featuring all the usual characteristics of a rooftop terrace, this also includes a vegetable garden for the staff of the adjoining strategy agency. 

Each team member takes care of at least two flower or vegetable beds, where they can grow their own flowers or produce, and are supported by a gardener. Harvesting potatoes after a client meeting or enjoying a piece of home-grown radish offers a refreshing and important balance to a highly creative work force. The urban farming helps ignite new ideas, the lifeblood of a strategy agency. From design up to co-ordinating and overseeing the actual building conversion, every aspect of the project was managed by Raumstar.

groundplan

groundplan

Year
2015
Area
ca. 300 qm
wood, steel, soil
Berlin Kreuzberg

Urban farming, Rooftop garden
This rooftop in Berlin Kreuzberg not only features a classic terrace area but also a flower and vegetable garden, where the employees of the adjoining strategy agency can grow their own vegetables and herbs in dedicated beds.

Architect
Michael Kloos
Planning levels (Hoai)
1-8
Team
Carlos Lara, Daniel Slota
Photographer
Udo Meinel, Matthias Walendy